Skip to main content

Aktuelle Projekte

Blachendorfer Str. 12

Drachselsried

Klimafreundliches Mehrfamilienhaus mit 7 Eigentumswohnungen in Drachselsried

Birkenweg 10a

Drachselsried

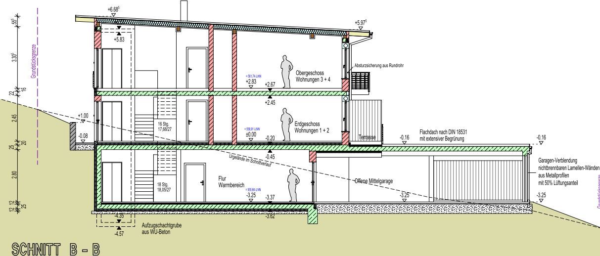
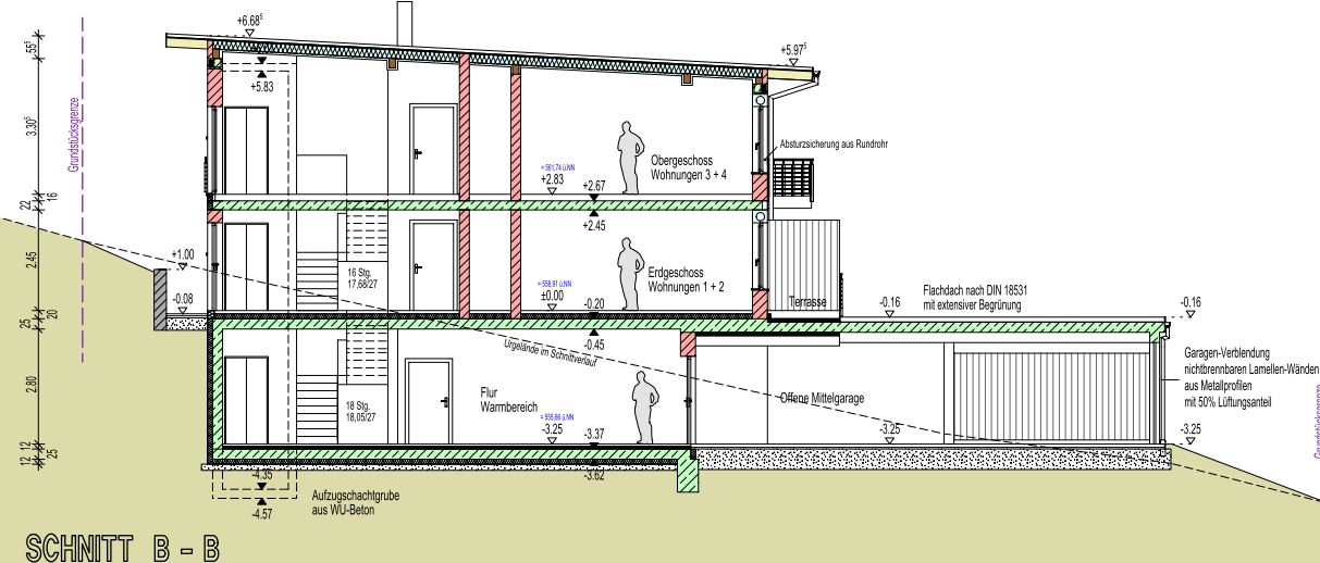
Klimafreundliches Mehrfamilienhaus mit 4 Eigentumswohnungen in Drachselsried

Scharebenstraße 5 und 7

Bodenmais

Klimafreundliches Mehrfamilienhaus mit 9 Eigentumswohnungen in Bodenmais